Making our space work better
After 20 years of faithful service as the hub for our Intentional Living/Learning Community and as the setting for hundreds of gatherings, from Tuesday night dinners to Sunday night worship, it’s time for us to roll up our sleeves and refresh our beloved Martin Luther House.
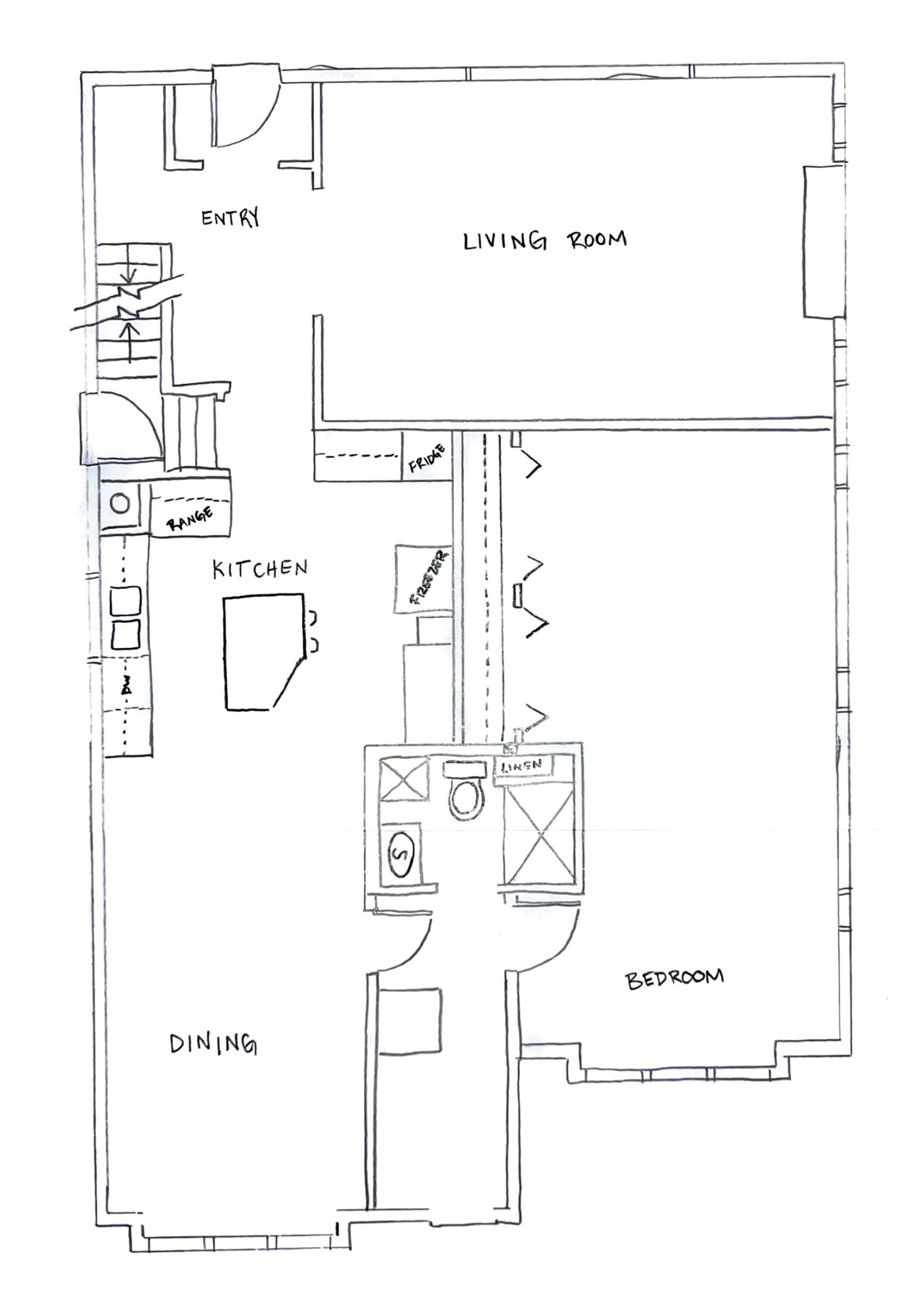
Currently, student residents have very little individual storage space in the kitchen cupboards and fridge, and Tuesday night dinners have grown to the point where it’s impractical to prepare them in the kitchen. There is no public washroom for guests to use (the main-floor resident shares their bathroom each week). Overall, our beloved house is starting to show its age—the hardwood floors badly need refinishing, and the appliances are old and inefficient.
We’re excited to share the news that Lutheran Campus Ministry – Edmonton has secured grant funding from the Lutheran Triune Educational and Benevolent Society of Calgary for a major renovation to Martin Luther House!
The grant funds up to 1/3 of a project, to a maximum of $10,000. We have been awarded the maximum amount, and have taken on the task of raising the remaining $20,000 through donations (both financial and in-kind) and other external funding.
If you would like to make a financial contribution to the project, please visit lcmedmonton.ca/giving for ways to give.
If you have some free time over the spring and summer and would like to be a part of this major refresh of the House for its future student residents, email pastorellymchan@gmail.com to find out more about volunteer opportunities!

The current main floor plan for Martin Luther House
About Us
Phase One
In Phase One, we will transform the kitchen by replacing the current range with an induction cooktop and double oven, adding a commercial dishwasher, and installing a 48″ fridge. The existing island will be replaced by a rolling stainless steel island, giving us more storage and flexibility for hosting student gatherings. The countertops and cupboards will be replaced, the flooring in the kitchen, dining room, and back entry will be replaced with a flooring that can handle the wear and tear of a busy kitchen, and the rest of the hardwood floors will be lovingly refinished.
We will also create a butler’s pantry by re-opening the wall to the original dining room (long before we knew the house as Martin Luther House), which was converted into the current main-floor bedroom when the extension to the house was built. Repurposing some space from the the large bedroom, the new butler’s pantry will include dedicated countertop space, upper, and lower cupboards for each resident, as well as storage and prep-space for our Tuesday Night Dinners.
The back entry will now lead directly into the dining area, instead of passing by the students’ laundry area. A new wall will create a laundry area that can be closed off when hosting gatherings.
The wall opposite the fridge will be expanded outward slightly to create temporary closet space for the bedroom, which will become an ensuite in future phases.

Dana Rayment Memorial Garden
LCM-E lost a beloved member of our campus family in 2025, Dana Rayment, who served for decades alongside her spouse, Chaplain Emeritus Richard Reimer, as well as in an official capacity as Chaplain to NAIT and MacEwan University from 2020 to 2025.
Dana was a force. She was exactly herself, and by being exactly herself, she welcomed everyone and gave them permission to be exactly who they were. She loved fiercely and passionately.
And among her many interests and passions, she loved to garden, to cook, to feed people. And so, in her honour, we will be transforming the front yard of Martin Luther House into the Dana Rayment Memorial Garden: a free community garden of flowers and vegetables from which any passerby can take as they have need, or sit in silence for a moment of meditation, or sit with a friend for caring conversation.
While we are working to transform the inside of Martin Luther House to better welcome people in, we will also be creating this welcoming space outside. We will be building raised beds with built-in passive irrigation, so that the garden can be easily and lovingly tended over the years to come. We will also add seating and subtle landscaping, to create a space for all people, just as all people have space with God.

About Us
Phases Two and Three
Next summer, renovations will continue with the addition of built-in bench seating along the west wall of the dining area, and the completion of the main floor ensuite. The existing shower will be removed, walled off, and converted into a closet. The temporary closet space will be turned into a private bathroom with a shower, such that the main-floor resident will no longer have to share with the general public at events like Tuesday night dinners.
Other upgrades will be completed during these phases, including the replacement of several windows that are approaching their end of life.
It’s a BIG plan that will help us keep dreaming BIG dreams for the future of Lutheran Campus Ministry — Edmonton.

